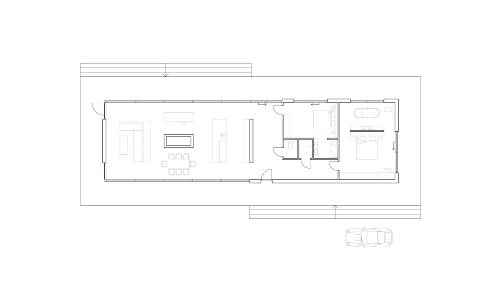
villa eden is een stoere verschijning omgeven door veel groen en rust. de kolomvrije plattegrond biedt flexibiliteit en garandeert ongehinderde uitzichten. de glazen puien rondom de villa brengt buiten naar binnen en vice versa.
"het gebruik van natuurlijke materialen en kleuren maakt de villa robust als een rots in het bos."